50
+31 (0)73 - 642 12 26
project:
paviljoen sint Nikolaaskerk

locatie:
helvoirt

opdrachtgever:
Protestantse gemeente Helvoirt-Haaren




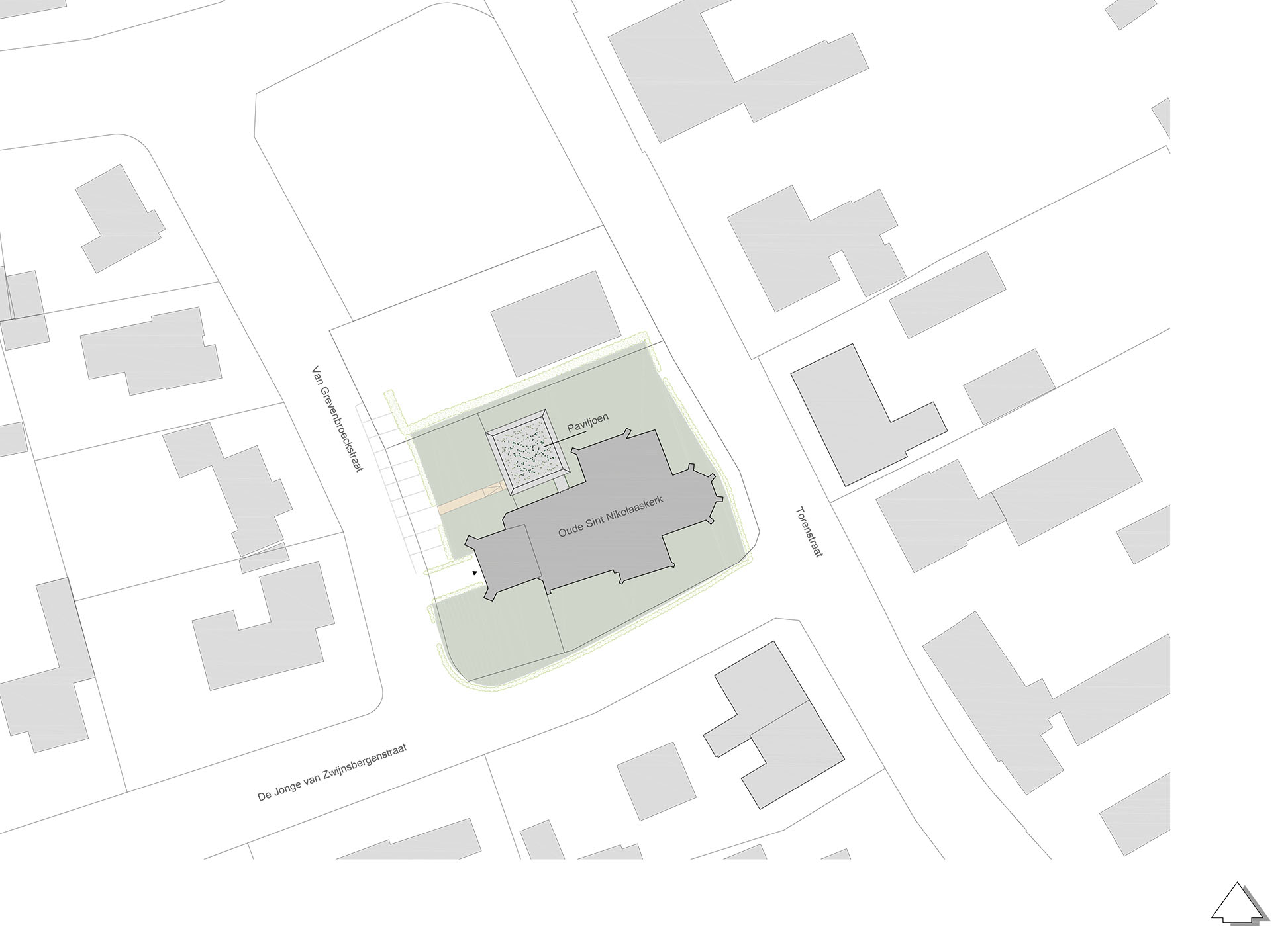
De ‘Oude Kerk’ is omstreeks 1192 gebouwd, aanvankelijk als houten kapel die meermalen is verbouwd. Rond 1510 krijgt de kerk na een ingrijpende verbouwingen haar gotische vorm.
Het voortbestaan van de kerk is in gevaar vanwege de kosten voor de kerk en het parochiehuis.
Het parochiehuis wordt gebruikt voor ondersteunende functies zoals toilet en wacht/ overlegruimte, die de kerk mist. De wens is om op het perceel van de kerk een paviljoen te realiseren zodat de parochie kan worden verkocht. Er is gekozen voor een houten, licht en ‘transparant’ paviljoen.
Het paviljoen staat los van de kerk maar wordt via een sluis verbonden met de kerk. Het houten paviljoen sluit niet alleen aan op het oorspronkelijke karakter van de kerk maar ook op een oude doorgang aan de noordzijde van de kerk.
De houten (spant)structuur en kozijnen met transparante en translucente isolatiebeglazing zorgen voor een heldere en demontabele stuctuur.
Het dak is ontworpen als groendak voor een gunstig binnenklimaat en maximale regenwater retentie. De overstekken aan het paviljoen zullen directe zonintreding beperken. Met gordijnen in het paviljoen is eenvoudig de mate van privacy zelf te bepalen en ze zorgen voor een prettige akoestiek en het weren van direct licht.


Web Page Maker, create your own web pages.